Maison 89 m² Sainte-Blandine
Description Sainte-Blandine
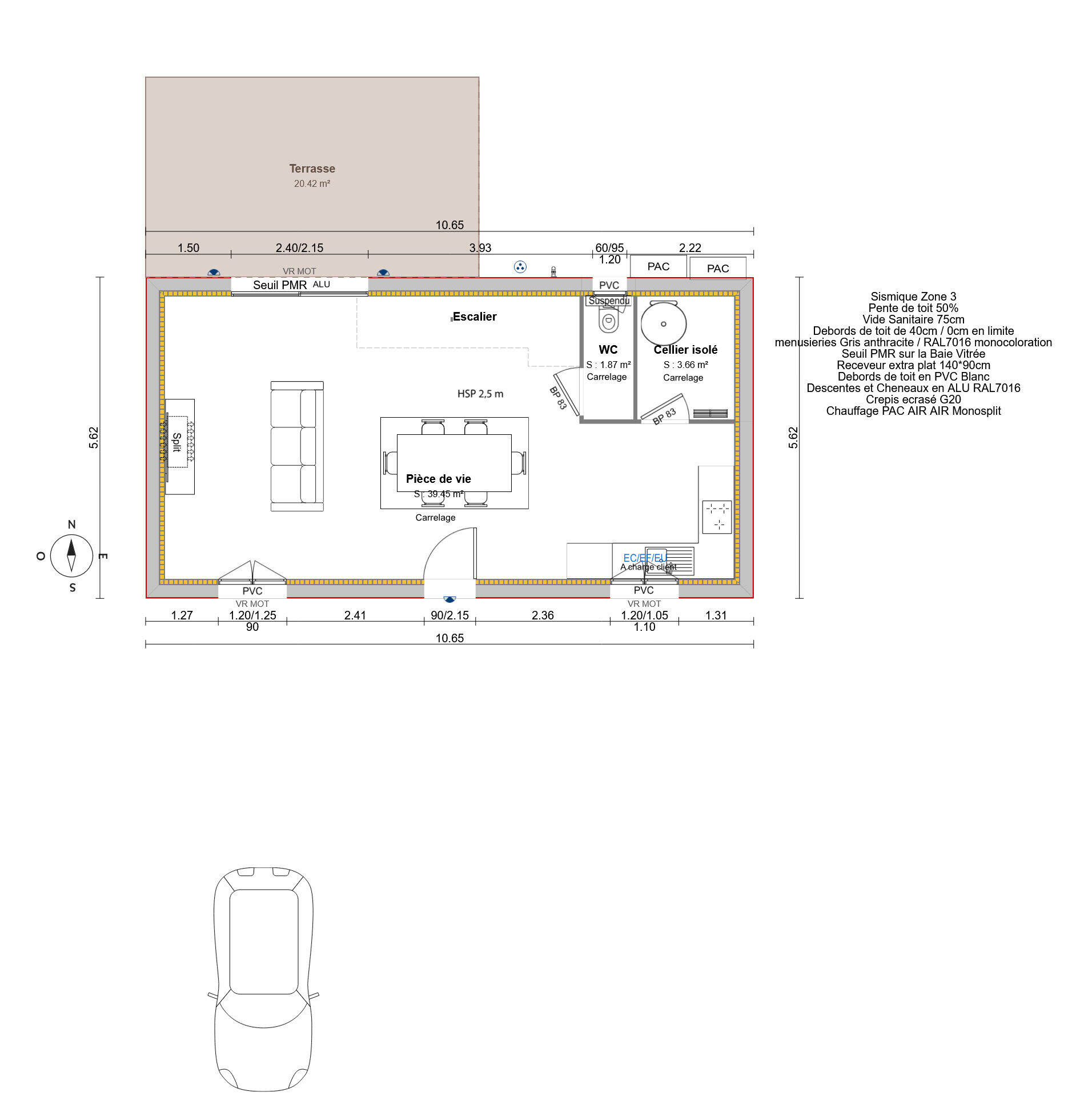
Sainte Blandine – Maison neuve 3 chambres sur terrain de 353 m²
Découvrez ce projet de maison à étage de 89 m², idéalement située à Sainte Blandine, dans un environnement calme et pratique au quotidien.
Cette maison fonctionnelle propose :
- Une pièce de vie lumineuse et bien pensée
- Trois chambres à l’étage, parfaites pour une vie de famille
- Une salle de bain moderne
- Des prestations actuelles et soignées pour un confort optimal
Implantée sur un terrain de 353 m², cette maison vous permet d’aménager facilement terrasse, jardin ou espace de détente selon vos envies.
Pourquoi choisir Maisons Axial ?
- Maison entièrement personnalisable : surface, aménagements, finitions
- Accompagnement complet : étude, démarches, suivi de chantier
- Aides possibles : profitez du Prêt Accession Procivis Rhône – 25 000€ à 0% (sous conditions, réservé aux primo-accédants)
- Projet conforme RE2020.
Construisez une maison moderne, confortable et adaptée à votre mode de vie.
Contactez-nous pour en savoir plus. Ref SBR
DO, VRD, Viabilités et garanties incluses
*Tarif Janvier 2026. Solution Pompe à Chaleur. Possibilité autres modes de chauffage. Prix susceptibles d’être modifiés selon secteurs et options choisies par l’acquéreur. Prix hors aménagements extérieurs : terrasse, piscine...
Détails du bien
-
Surface habitable
89m² -
Nom du commercial
Maisons AXIAL - Bourgoin-Jallieu -
Typologie
Etage -
Norme / label énergétique
RE 2020 -
Prix terrain*
50 000 € -
Prix total (TVA normale)
215 000 € -
Garage
non -
Prix construction
165 000 €
Découvrez le quartier
Votre agence de secteur : Maisons Axial Bourgoin-Jallieu
38300 Bourgoin Jallieu
Samedi : sur rendez-vous
« * » indique les champs nécessaires
Notre projet, c’est le vôtre
Nos questions fréquentes
Oui, les inspirations proposées par Maisons Axial sont entièrement personnalisables. Elles peuvent servir de point de départ pour concevoir votre maison sur-mesure. Vous pouvez adapter les plans en fonction de vos envies, de vos besoins et de votre mode de vie.
Oui, tout à fait. La maison proposée dans une offre terrain + maison est une suggestion d’implantation et de typologie. Elle peut être modifiée selon vos envies. Vous avez également la possibilité de concevoir une maison entièrement sur-mesure, adaptée à vos besoins et à votre terrain.
Non, l’étude de votre projet est entièrement gratuite. Chez Maisons Axial, vous pouvez rencontrer nos conseillers, discuter de vos besoins et obtenir une première estimation sans aucun engagement. Cela vous permet de réfléchir sereinement à votre projet avant de vous lancer.
Oui. Tous les projets réalisés par Maisons Axial sont encadrés par un Contrat de Construction de Maison Individuelle (CCMI). Ce contrat vous garantit un cadre légal sécurisé, un prix ferme et définitif, un délai de livraison, ainsi que plusieurs garanties obligatoires pour construire en toute sérénité.
Oui, vous pouvez vous rendre en agence sans rendez-vous. Toutefois, il est préférable d’appeler avant votre visite afin de vous assurer de la disponibilité d’un conseiller et de bénéficier d’un accueil personnalisé.
La durée de construction d’une maison varie selon plusieurs facteurs. En moyenne, il faut compter entre 8 et 12 mois entre le début des travaux et la remise des clés. Ce délai dépend notamment de la complexité du projet, des matériaux choisis, des conditions météo et de la nature du terrain.





