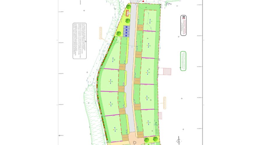
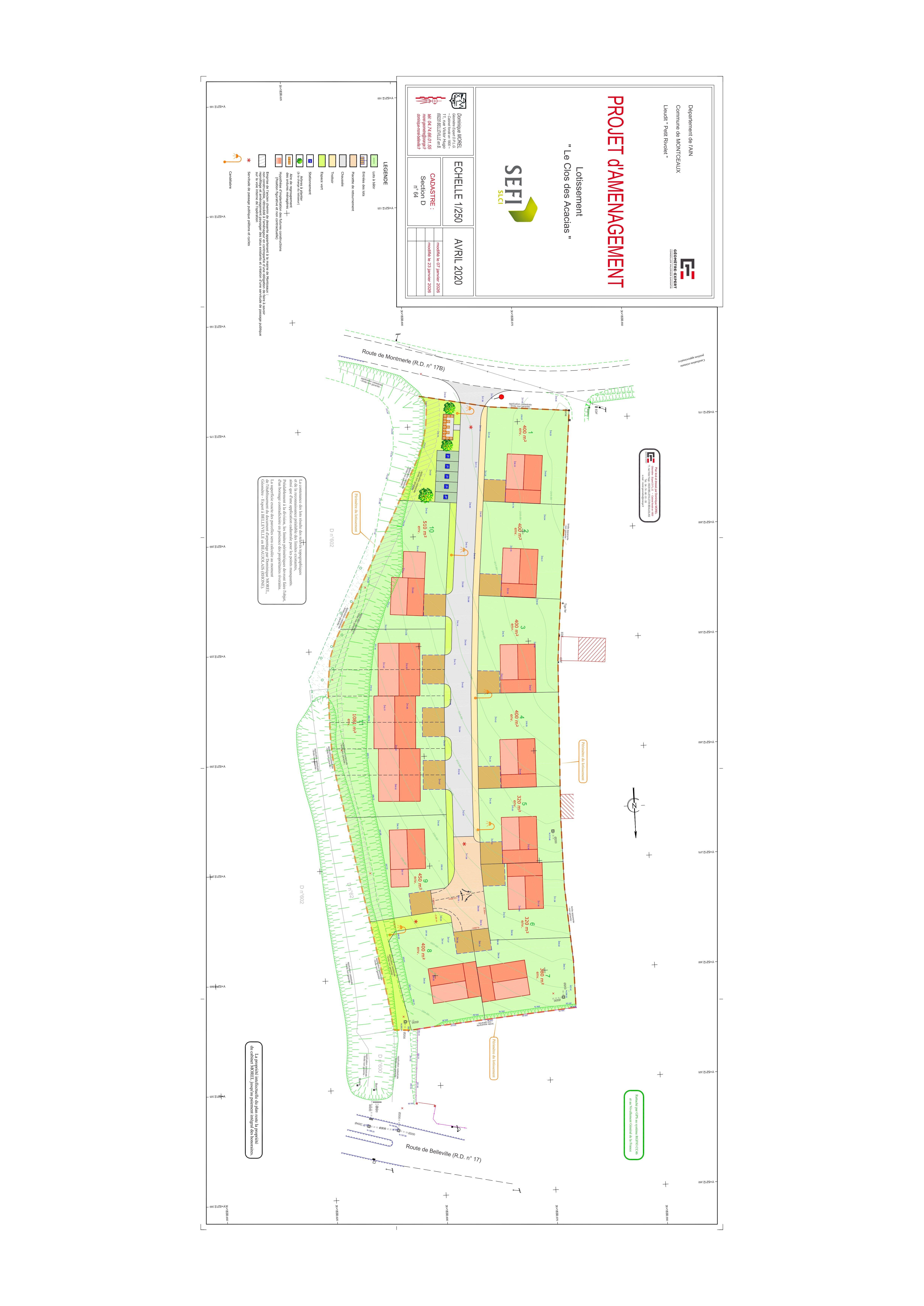
Terrain 450 m² Montceaux
Description Montceaux
Au cœur d’un environnement paisible et verdoyant, découvrez ce terrain exceptionnel de 400 m², parfait pour concrétiser votre projet de construction.
400 m² de potentiel pour imaginer votre futur chez-vous
Libre constructeur : créez une maison 100% à votre image
Entièrement viabilisé : eau, électricité, télécom, eaux usées, eaux pluviales… tout est prêt pour démarrer votre projet sereinement
Un cadre privilégié pour bâtir la maison de vos rêves et profiter chaque jour d’un environnement calme et naturel.
Ne laissez pas passer cette occasion unique !
Contactez-nous dès aujourd’hui pour en savoir plus ou planifier une visite.
Détails du bien
Prix terrain / lot
84 900 €Surface terrain
450 m²
Découvrez le quartier
« * » indique les champs nécessaires
Notre projet, c’est le vôtre
Nos questions fréquentes
Oui, les inspirations proposées par Maisons Axial sont entièrement personnalisables. Elles peuvent servir de point de départ pour concevoir votre maison sur-mesure. Vous pouvez adapter les plans en fonction de vos envies, de vos besoins et de votre mode de vie.
Oui, tout à fait. La maison proposée dans une offre terrain + maison est une suggestion d’implantation et de typologie. Elle peut être modifiée selon vos envies. Vous avez également la possibilité de concevoir une maison entièrement sur-mesure, adaptée à vos besoins et à votre terrain.
Non, l’étude de votre projet est entièrement gratuite. Chez Maisons Axial, vous pouvez rencontrer nos conseillers, discuter de vos besoins et obtenir une première estimation sans aucun engagement. Cela vous permet de réfléchir sereinement à votre projet avant de vous lancer.
Oui. Tous les projets réalisés par Maisons Axial sont encadrés par un Contrat de Construction de Maison Individuelle (CCMI). Ce contrat vous garantit un cadre légal sécurisé, un prix ferme et définitif, un délai de livraison, ainsi que plusieurs garanties obligatoires pour construire en toute sérénité.
Oui, vous pouvez vous rendre en agence sans rendez-vous. Toutefois, il est préférable d’appeler avant votre visite afin de vous assurer de la disponibilité d’un conseiller et de bénéficier d’un accueil personnalisé.
La durée de construction d’une maison varie selon plusieurs facteurs. En moyenne, il faut compter entre 8 et 12 mois entre le début des travaux et la remise des clés. Ce délai dépend notamment de la complexité du projet, des matériaux choisis, des conditions météo et de la nature du terrain.






