Maison 200 m² Bourgoin-Jallieu
Description Bourgoin-Jallieu
Magnifique villa contemporaine de 227m² - secteur Plambourgoin
**Prix attractif - Opportunité rare !**
Découvrez cette magnifique villa de 227m² sur 569m² de terrain, idéalement située sur plambourgoin, bénéficiant d'une exposition sud qui vous garantit un ensoleillement optimal tout au long de la journée.
**Caractéristiques principales :**
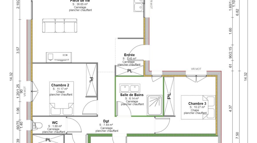
- **Surface habitable :** 227m²
- **Nombre de chambres :** 4 suites lumineuses avec terrasse
- **Exposition :** Sud, pour des pièces baignées de lumière
- **Emplacement :** secteur prisé, à proximité des commodités (écoles, commerces, transports)
**Points forts :**
- **Salon spacieux et lumineux de 60m²** : Parfait pour des moments conviviaux en famille ou entre amis avec ses auvents
- **Suites parentales pour TOUS** : petits et grands, chacun son espace
- **Jardin agréable** : Espace extérieur sans vis-a-vis, idéal pour vos moments de détente et loisirs.
Profitez de la tranquillité d’un quartier résidentiel tout en étant à quelques pas de toutes les commodités nécessaires à votre quotidien.
**Ne manquez pas cette occasion unique !**
En faisant construire votre maison avec Maisons Axial, vous pouvez bénéficier en exclusivité du prêt Accession Procivis Rhône*, un prêt de 25000€ à 0 %. Accessible sous conditions de ressources et réservé aux primo-accédants.
Découvrez les aides auxquelles vous avez droit et devenez propriétaire.
Si vous souhaitez obtenir plus d'informations ou discuter d'avantage de ce projet, n'hésitez pas à nous contacter. Nous sommes à votre disposition pour répondre à vos questions et vous accompagner dans la réalisation de votre projet immobilier à Bourgoin.
ref SBR
Ce modèle est intégralement personnalisable en surface, aménagements intérieurs et systèmes de chauffage.
DO, VRD, Viabilités et garanties incluses - Conforme RE2020.
*Tarif Janvier 2026. Solution Pompe à Chaleur. Possibilité autres modes de chauffage. Prix susceptibles d’être modifiés selon secteurs et options choisies par l’acquéreur. P
Détails du bien
-
Surface habitable
200m² -
Nom du commercial
Maisons AXIAL - Bourgoin-Jallieu -
Typologie
Etage -
Norme / label énergétique
RE 2020 -
Prix terrain*
140 000 € -
Prix total (TVA normale)
770 000 € -
Garage
oui -
Prix construction
630 000 € -
Surface annexe
31m²
Découvrez le quartier
Votre agence de secteur : Maisons Axial Bourgoin-Jallieu
38300 Bourgoin Jallieu
Samedi : sur rendez-vous
« * » indique les champs nécessaires
Notre projet, c’est le vôtre
Nos questions fréquentes
Oui, les inspirations proposées par Maisons Axial sont entièrement personnalisables. Elles peuvent servir de point de départ pour concevoir votre maison sur-mesure. Vous pouvez adapter les plans en fonction de vos envies, de vos besoins et de votre mode de vie.
Oui, tout à fait. La maison proposée dans une offre terrain + maison est une suggestion d’implantation et de typologie. Elle peut être modifiée selon vos envies. Vous avez également la possibilité de concevoir une maison entièrement sur-mesure, adaptée à vos besoins et à votre terrain.
Non, l’étude de votre projet est entièrement gratuite. Chez Maisons Axial, vous pouvez rencontrer nos conseillers, discuter de vos besoins et obtenir une première estimation sans aucun engagement. Cela vous permet de réfléchir sereinement à votre projet avant de vous lancer.
Oui. Tous les projets réalisés par Maisons Axial sont encadrés par un Contrat de Construction de Maison Individuelle (CCMI). Ce contrat vous garantit un cadre légal sécurisé, un prix ferme et définitif, un délai de livraison, ainsi que plusieurs garanties obligatoires pour construire en toute sérénité.
Oui, vous pouvez vous rendre en agence sans rendez-vous. Toutefois, il est préférable d’appeler avant votre visite afin de vous assurer de la disponibilité d’un conseiller et de bénéficier d’un accueil personnalisé.
La durée de construction d’une maison varie selon plusieurs facteurs. En moyenne, il faut compter entre 8 et 12 mois entre le début des travaux et la remise des clés. Ce délai dépend notamment de la complexité du projet, des matériaux choisis, des conditions météo et de la nature du terrain.





